売買住宅情報
物件名【朝来字上村】
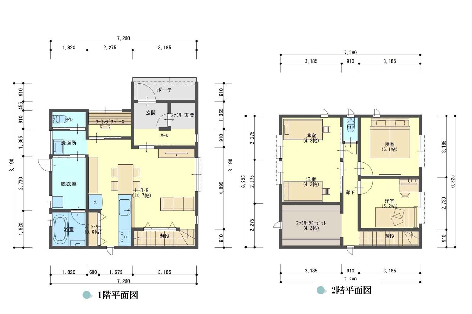
間取り図
位置図
| 所在地 | 西牟婁郡上富田町朝来字上村 |
| 土地面積 | 193.98㎡(58.67坪) ※平地部分 |
| 価格 | 2,950万円 |
| 間取り | 3SLDK 1F LDK19.24、浴室、 洗面脱衣、トイレ 2F 寝室7.5、洋5.3、 サロンコーナー5.0、WIC3.13 |
| 建物面積 | 延面積 100.80㎡(30.49坪) 1F:51.12㎡ 2F:49.68㎡ |
| 交通 | JR朝来駅より車で1.3km |
| 駐車場 | 有(3台) |
| 築年月 | 令和6年2月 |
| 構造 | 木造合金メッキ鋼板葺2階建 |
| 土地権利 | 所有権 |
| 地目 | 宅地 |
| 都市計画 | 未線引区域 |
| 用途地域 | 未指定 |
| 建ぺい率 | 60% |
| 容積率 | 200% |
| 接道状況 | 1方 |
| 道路 | 幅員:南東側 約6m 間口:約10.6m |
| 津波災害警戒区域 | 区域外 |
| 土砂災害警戒区域 | 区域外 |
| 河川浸水想定区域 | 区域内(0.5~3.0m) |
| ため池ハザード | 区域外 |
| 埋蔵文化財包蔵地 | 該当地 |
| 取引態様 | 仲介 |
| 設備 | オール電化(エコキュート・IH) システムキッチン・ペアガラス ・ウォシュレットトイレ(1F/2F) ・バリアフリー・TVインターホン ・全室LED照明・浴室乾燥・制震住宅 ・高断熱・ハウスシック対応 ・食器洗浄機・郵便ポスト・公共下水 |
| 備考 | 現 況:空家 引渡日:相談 |
お問合せ先
総合不動産 アビエス
URL http://www9.plala.or.jp/abies/
E-mail:info@abies-tanabe.com
〒646-0051和歌山県田辺市稲成町224-7
TEL0739-26-8900 FAX0739-26-8448












